


SSTC
Bright top floor flat in West Bishopston with panoramic views, modern finish and no onward chain.
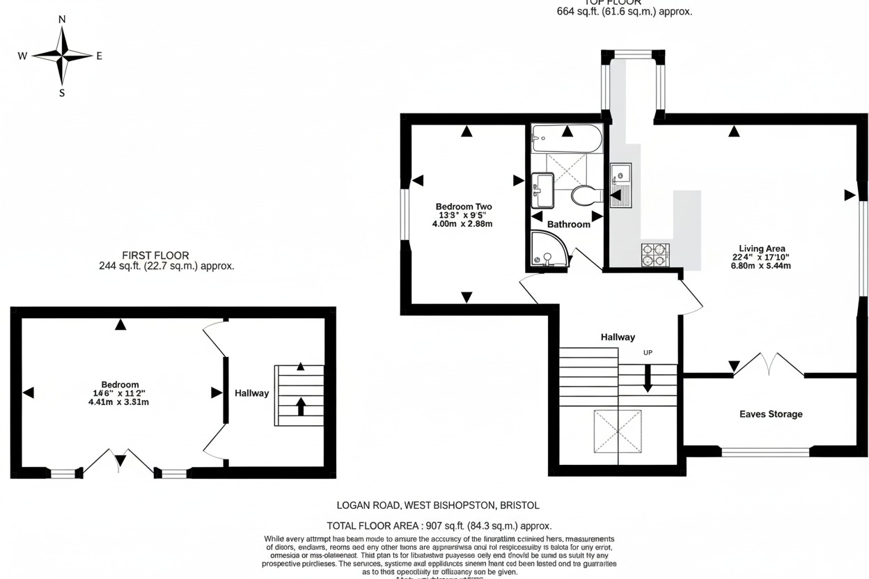
Logan Road, Bristol, BS7 8DS
Guide Price
£325,000
BEDROOM
2
BATHROOM
1
RECEPTION
1
CALL NOW
0117 427 2346Offered chain free
Sought after West Bishopston location
Top floor, split level apartment in detached Victorian building
One generuous double bedroom with elevated outlook / Second smaller bedroom, ideal study or guest room
Open plan living area with panoramic city views
Light filled and tastefully finished throughout
Share of Freehold with 867 years remaining - Service charge of £50 per month
Excellent access to Whiteladies Road (0.3m), Gloucester Road (0.5m) and Durdham Downs (0.4m)
Communal bike storage
EPC: C
Property Info
Map
Floor Plan
Description
West Bishopston is one of Bristol’s most desirable residential neighbourhoods, prized for its leafy tree lined streets, welcoming community atmosphere, and excellent access to green spaces and independent amenities.
This apartment enjoys a prime position equidistant from both Gloucester Road (0.5m) and Whiteladies Road (0.3m), putting a vibrant mix of cafés, restaurants, pubs, and boutique shops right on your doorstep. Durdham Downs (0.4m), a vast expanse of open parkland, offers the perfect setting for running, dog walking, or weekend relaxation. You’re also within easy reach of Clifton Down Station (0.5m) for direct transport links, and comfortably within the catchment for the highly regarded Redland Green School (0.7m). Altogether, this location strikes an ideal balance between lifestyle, connectivity, and long term value.
Occupying the top floor of a grand detached Victorian building, this split level apartment combines classic architecture with a fresh, contemporary finish. It has been thoughtfully refurbished throughout, creating a light filled and welcoming space with plenty of character. Offered to the market with no onward chain, the property presents a turnkey opportunity for buyers seeking something special in a well established and much loved part
of the city.
The living space unfolds over two levels, designed to maximise light and make clever use of the available floor area. The open plan kitchen and living room is both charming and practical, a bright, airy space with panoramic sash style windows, a glazed dormer, and elevated views across the rooftops. This room offers plenty of room for both dining and relaxation, with well defined zones and a layout that flows naturally. The recently renovated kitchen is stylish and efficient, fitted with a breakfast bar and an impressive range of integrated appliances including an oven, hob, fridge, freezer, dishwasher, washing machine, and wine cooler, perfect for hosting or enjoying quiet evenings at home.
The principal bedroom is a comfortable double with an elevated outlook and generous natural light. The second bedroom is a smaller room that can accommodate a double bed if required, but works particularly well as a home office, nursery, or guest bedroom, offering valuable flexibility for modern lifestyles. The bathroom is cleanly designed and well appointed,featuring a large basin, full sized bathtub, and a separate glass panelled shower enclosure, a rare and welcome feature in a property of this style.
Additional benefits include full double glazing, gas central heating, commnual bike storage and tasteful modern finishes throughout. The property is held on a share of freehold, with 867 years remaining on the lease and a low service charge of just £50 per month, offering peace of mind and low ongoing costs.
Compact yet considered, full of light and warmth, and set in one of Bristol’s most attractive areas, this apartment is ideally suited to first time buyers, young professionals, or investors looking for a low maintenance home with strong long term appeal. Its character, setting, and quality finish make it a standout option in the local market.
Property Information
Property Type
Flats / Apartments
Property Style
Flat
Parking
Residents
Floor Area
907
Tenure Type
Share Of Freehold
Age Of Property
Victorian
Council Tax Band
B
Sewerage
Mains Supply
Water
Mains
Condition
Good
Additional Information
Heating
Gas Central
Electricity
Mains Supply

