


Striking 4-bed family home on 0.6 acres with in-out drive and exceptional spacious design
The Broadway, Oadby, Leicester
Oiro
£1,400,000
BEDROOM
4
BATHROOM
2
RECEPTION
2
CALL NOW
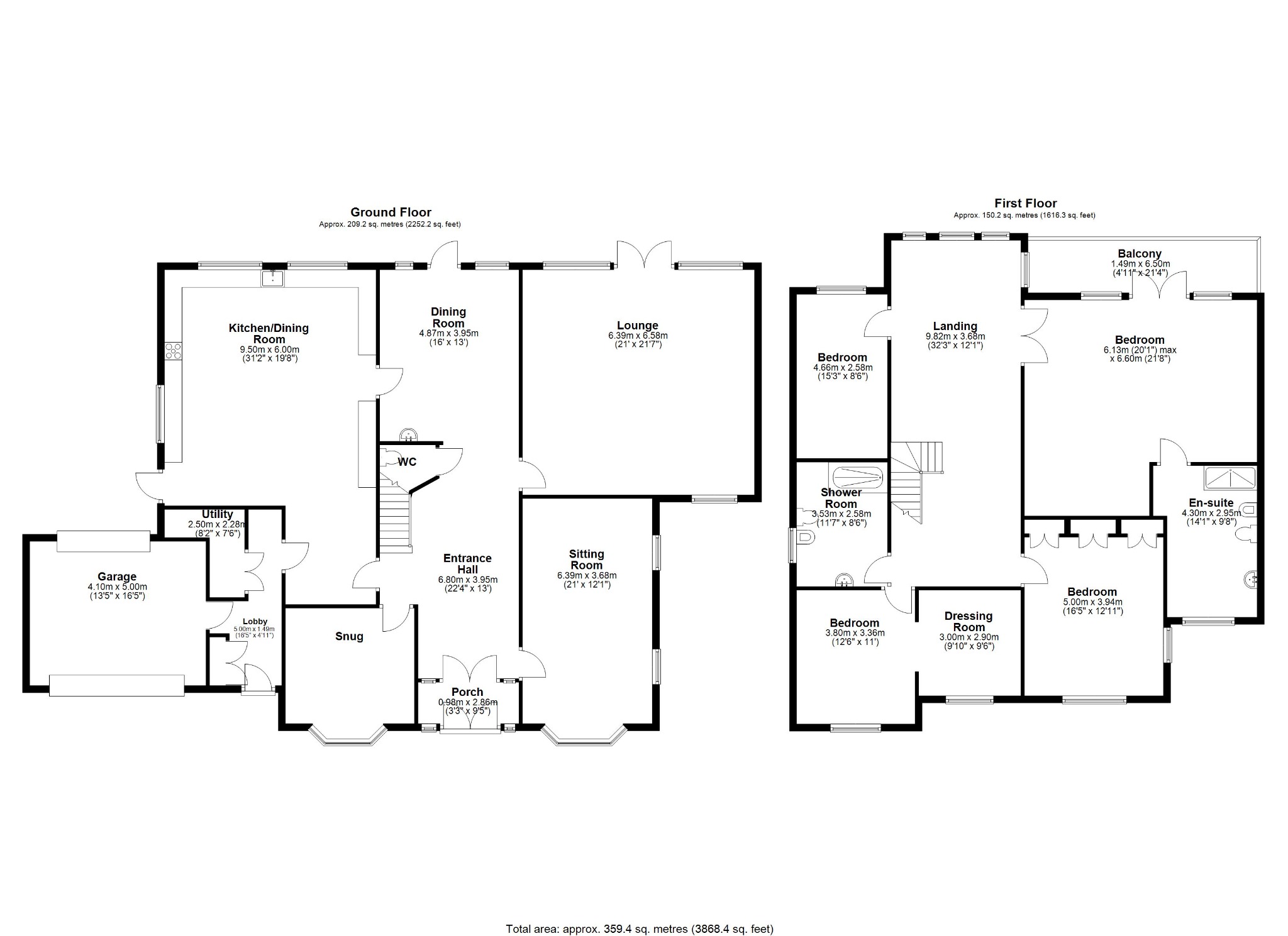
07388 184397Grand four bedroom detached home on The Broadway extending to over 3,800 sq ft
Redesigned and cherished by the current owners, offering an exceptional and spacious internal layout
Impressive entrance hall with sweeping statement staircase and chandelier feature
Expansive reception rooms with elegant flooring, ornate cornicing and large picture and arched windows flooding the home with light
Contemporary kitchen with integrated appliances and adjoining dining room framed by decorative arched windows
Beautifully maintained grounds approaching 0.6 acres, extending beyond the original fence line after the owners acquired additional land
In and out driveway with manicured front lawns and an integral garage suitable for a large car
Close to excellent schools, with easy access to the A6, train station, city centre and nearby villages
Property Info
Map
Floor Plan
Description
An exceptional four bedroom family home of over 3,800 sq ft, where the layout has been beautifully reimagined to create grand, light-filled spaces that flow seamlessly throughout. Set within landscaped grounds approaching 0.6 acres, the gardens extend beyond the original fence line after the owners acquired additional land, creating a wonderful sense of openness and privacy. 
From the statement staircase to the generous reception rooms and elegant finishes, every part of this home has been designed with space, light and quality in mind, this is a truly special residence on one of the area’s most desirable roads.
A much loved family home that has been completely redesigned by its long term owners to create an elegant and expansive residence of around 3,800 square feet. Set within beautifully maintained grounds approaching 0.6 acres, this is a home that instantly impresses with its scale, light and distinctive character.
From the moment you enter, the curved statement staircase takes centre stage beneath a crystal chandelier, leading to a grand galleried landing with polished wood flooring. Every room feels generous in proportion, with large picture and arched feature windows filling the interiors with light and framing views across the gardens.
The main living spaces are designed for both family life and entertaining. The sitting room and lounge are exceptionally large, opening through wide glazed doors to the terrace and gardens beyond. The formal dining room, framed by elegant arched windows with decorative glazing, connects directly to the contemporary kitchen which features extensive storage, granite style surfaces, integrated white goods including dishwasher and washing machine, and ample space for dining.
The principal bedroom is an outstanding suite, large enough to accommodate substantial furniture, with double doors opening to a private balcony overlooking the gardens. Its en suite bathroom is fitted with high quality sanitaryware and a double walk in shower. All four bedrooms are generous in size, with two enjoying views to the front and two overlooking the gardens to the rear.
Outside, the home is approached via a sweeping in and out driveway with manicured lawns and mature planting. The rear garden extends beyond the original boundary after the owners acquired additional land, creating a generous outdoor setting ideal for families and gatherings.
The property also includes an integral garage suitable for a large car, a utility room and several reception areas that can be adapted for a study or snug.
Every detail reflects the care and attention given by its owners, with the overall presentation exceptionally well maintained. The layout, light and craftsmanship combine to offer a home of genuine distinction in one of the area’s most desirable settings – the sort of property that would be almost impossible to replicate today.
Property Information
Property Type
House
Property Style
Detached
Parking
Garage
Floor Area
3868 Sq Ft
Tenure Type
Freehold
Council Tax Band
G

