


An exceptional rural dwelling under Paragraph 84 of the NPPF framework
Four Posts, Station Road, Harby, Newark, Nottinghamshire, NG23 7EQ
Guide Price
£2,200,000
BEDROOM
5
BATHROOM
5
RECEPTION
4
CALL NOW
01522 412802An exceptional dwelling under Paragraph 84 of the NPPF framework
Unique design-led residence approved in open countryside, recognized for outstanding quality and innovation
Includes main house, self-contained annexe, outdoor swimming pool, landscaped pond, and solar PV array
Seamlessly integrates property into the surrounding natural landscape
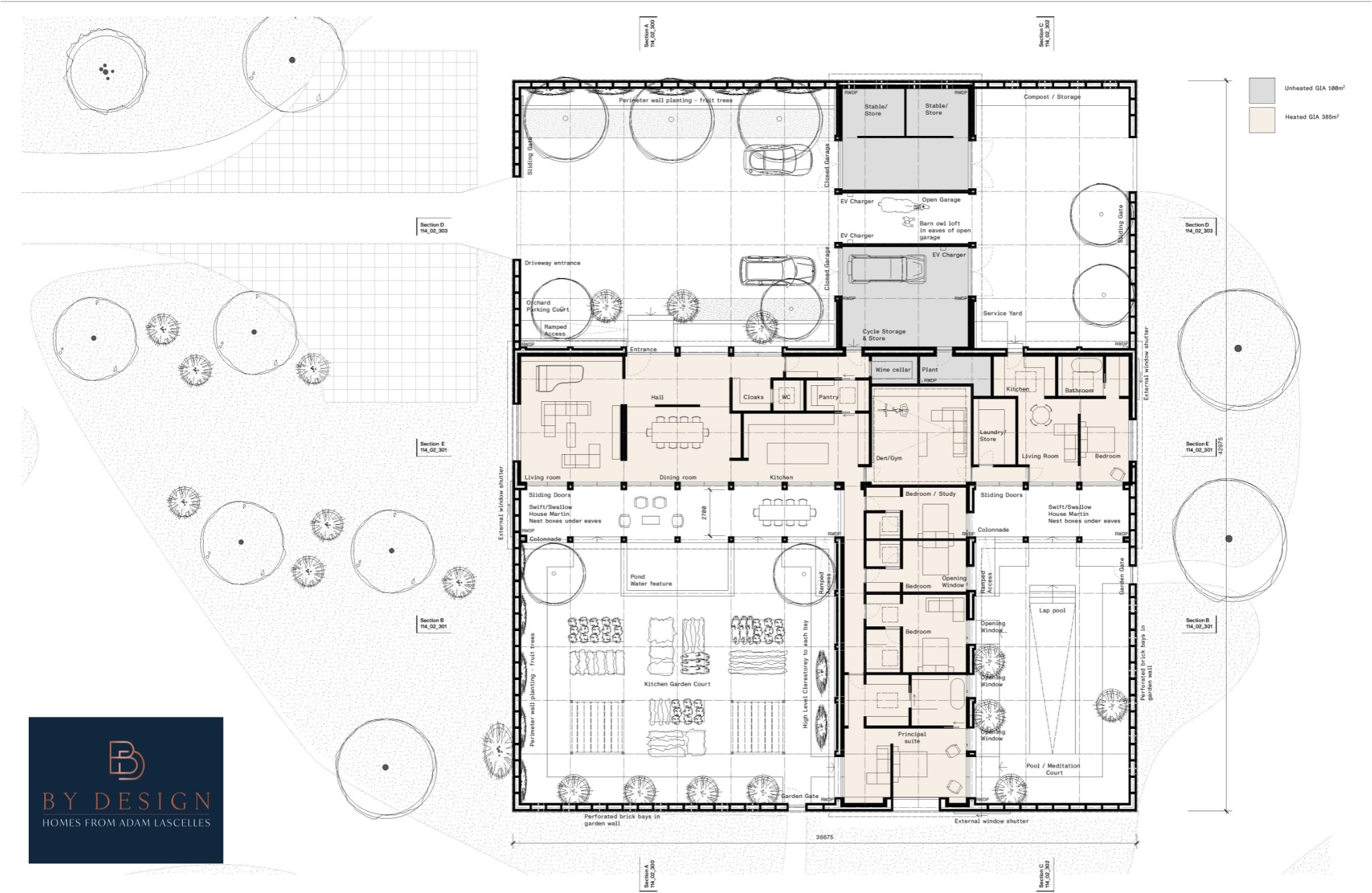
Cruciform house layout with wings for living quarters, bedrooms, annexe, storage, and stable garages
Single-storey dwelling approximately 580m² (6,243 sq ft) with a sustainable sedum and wildflower roof
Five bedrooms total, including one within the attached self-contained annexe space.
Perimeter wall constructed from red reclaimed bricks encloses the house and garden areas
Extensive new tree planting screens property from Station Road and enhances rural placemaking
Access from Station Road, entering into the main courtyard at south-west
Property Info
Map
Floor Plan
Media
Description
An exceptional rural dwelling under Paragraph 84 of the NPPF framework, recognised for its outstanding architectural quality and thoughtful innovation. The scheme comprises a main residence, a self-contained annexe, an outdoor swimming pool, a solar photovoltaic array and a landscaped pond, all set within a walled garden enclosed by a continuous perimeter wall. Externally, the property will occupy a picturesque plot approaching five acres.
This carefully considered design reflects a forward-thinking approach to sustainability, sensitive craftsmanship and the creation of a distinctive sense of place within the rural landscape.
Set within a picturesque rural plot approaching five acres, the approved scheme comprises a striking main residence alongside a self-contained annexe, an outdoor swimming pool, solar PV array, landscaped pond, all set within a walled garden enclosed by a continuous perimeter wall. The design also includes the formation of a new vehicular access with dropped kerbs, seamlessly integrating the property into its natural surroundings.
The house is designed in a cruciform layout, with each wing serving a distinct purpose: living quarters, bedrooms, an annexe, and storage. The northern arm of the dwelling is intended to accommodate stables and garages. Similarly, the four external spaces are designated for different uses – a kitchen garden, outdoor pool, services area, and a parking court. Two colonnades provide sheltered seating areas, one situated between the kitchen garden and the living space, and the other between the annexe and the pool.
The house will be single storey, with an approximate footprint of 580m² (6,243 sq ft). It will feature a sedum and wildflower roof, predominantly 3.7 metres (12 feet 2 inches) in height, rising to a maximum of 4.9 metres (16 feet 1 inch). The dwelling will comprise five bedrooms in total, including one within the attached annexe.
A perimeter wall will enclose the house and gardens, constructed using red reclaimed bricks. The inner face of the wall will be built using new brick.
The wider site proposals include substantial new tree planting along the boundaries, particularly to the west, where trees will screen the house from Station Road. A new woodland copse is planned along the southern edge, adjacent to existing trees. Additional landscape features include a pond and swale to the west of the house, along the access track, and a bank of photovoltaic panels.
The landscape also supports food production, with an orchard at the entrance, fruit bushes along the northern wall of the house, and nut trees planted to the north-east of the site.
Agents Note: This unique, design-led Paragraph 84 residence has been recognized for its outstanding quality and innovation, earning approval in open countryside where such development is rarely permitted. This landmark achievement celebrates not only architectural excellence but also a forward-thinking approach to sustainability, context-sensitive design, and rural placemaking. Planning reference: 23/01920/FULM Newark and Sherwood District Council
Location
Tucked into the quiet Nottinghamshire countryside near the Lincolnshire border, Harby is a quintessential English village just seven miles west of the historic city of Lincoln. Surrounded by rolling fields and open skies, this peaceful village combines rural charm with excellent connections to the wider region.
Harby offers a warm, close-knit community with a selection of local amenities that make village life both convenient and appealing. At its centre is Queen Eleanor Primary School, which has been rated Good by Ofsted and plays a key role in village life. The refurbished village hall hosts regular activities and includes an outreach Post Office service twice a week. There is also a well-maintained playing field with a sports pavilion, and the historic All Saints Church provides a tranquil focal point.
The village pub, the Bottle & Glass, has become a destination in its own right. Beautifully refurbished and award-winning, it is known for serving high-quality food in a welcoming, relaxed setting, making it a popular choice with locals and visitors, who travel far and wide.
Harby is ideally placed for those who enjoy the outdoors. It lies directly on the National Cycle Network, with a picturesque and traffic-free route stretching 6.6 miles into Lincoln’s Brayford Waterfront. The A1 is just twelve miles away, offering easy road access both north and south. For rail travel, Newark Northgate station is around half an hour by car and offers direct train services to London Kings Cross in as little as seventy-five minutes.
There is no shortage of natural beauty nearby. Within ten minutes of the village are Whisby Nature Park, Tunman Wood and Spalford Warren, all offering lovely walking trails and opportunities to connect with nature. Other attractions nearby include the impressive Doddington Hall and Gardens, home to a well-regarded farm shop and regular seasonal events.
For a broader range of amenities, Lincoln is only fifteen minutes away. The city offers a fascinating mix of history and culture, with its famous cathedral and castle dominating the skyline. The uphill Bailgate area is full of character, with independent shops, cafes and galleries, while the city centre provides all the services and retail options you would expect. Lincoln also has a mainline railway station with regular trains to London, making it an excellent choice for commuters.
Harby is well situated for both local and international travel. East Midlands Airport is approximately 41 miles away, with the drive typically taking around an hour.
Schooling
Families considering a move to Harby will find a strong selection of schools in the area. Queen Eleanor Primary School in the village is a feeder for Tuxford Academy, a co-educational secondary school rated Outstanding by Ofsted, located around twelve miles away and served by a school bus from the village. Other highly regarded state secondary schools include The Priory Academy LSST in Lincoln and William Farr Church of England Comprehensive in Welton, both also rated Outstanding.
There are excellent independent schools nearby as well. Burton Hathow Preparatory School, located just a short drive away in the village of Burton, offers a high-quality education in a nurturing and picturesque setting. In the centre of Lincoln, Lincoln Minster School provides both preparatory and senior education and is well known for its academic excellence and broad co-curricular offering.
We extend our sincere thanks to Daykin Marshall Studio, duly credited as the architects of the scheme and acknowledged for the creation of the CGI images.
Contact: Adam Lascelles
Property Information
Property Type
House
Property Style
Detached
Parking
Double Garage
Floor Area
6200 Sq. Ft
Tenure Type
Freehold

