


Burnham Manor A Country Home Shaped by Family Life and Celebration
Burnham Manor, Burnham, Lincolnshire
Fixed Price
£1,350,000
BEDROOM
6
BATHROOM
3
RECEPTION
4
CALL NOW
07910987844A country estate that has quietly hosted 31 years of family life, celebrations and milestones
6 acres of gardens, woodland, pasture, and open spaces that invite play, wandering and outdoor living
Open plan living, dining, kitchen
Welcoming reception rooms for every mood and occasion
Character details including sweeping staircase, cellar, intricate ceiling roses and original housekeeping bells
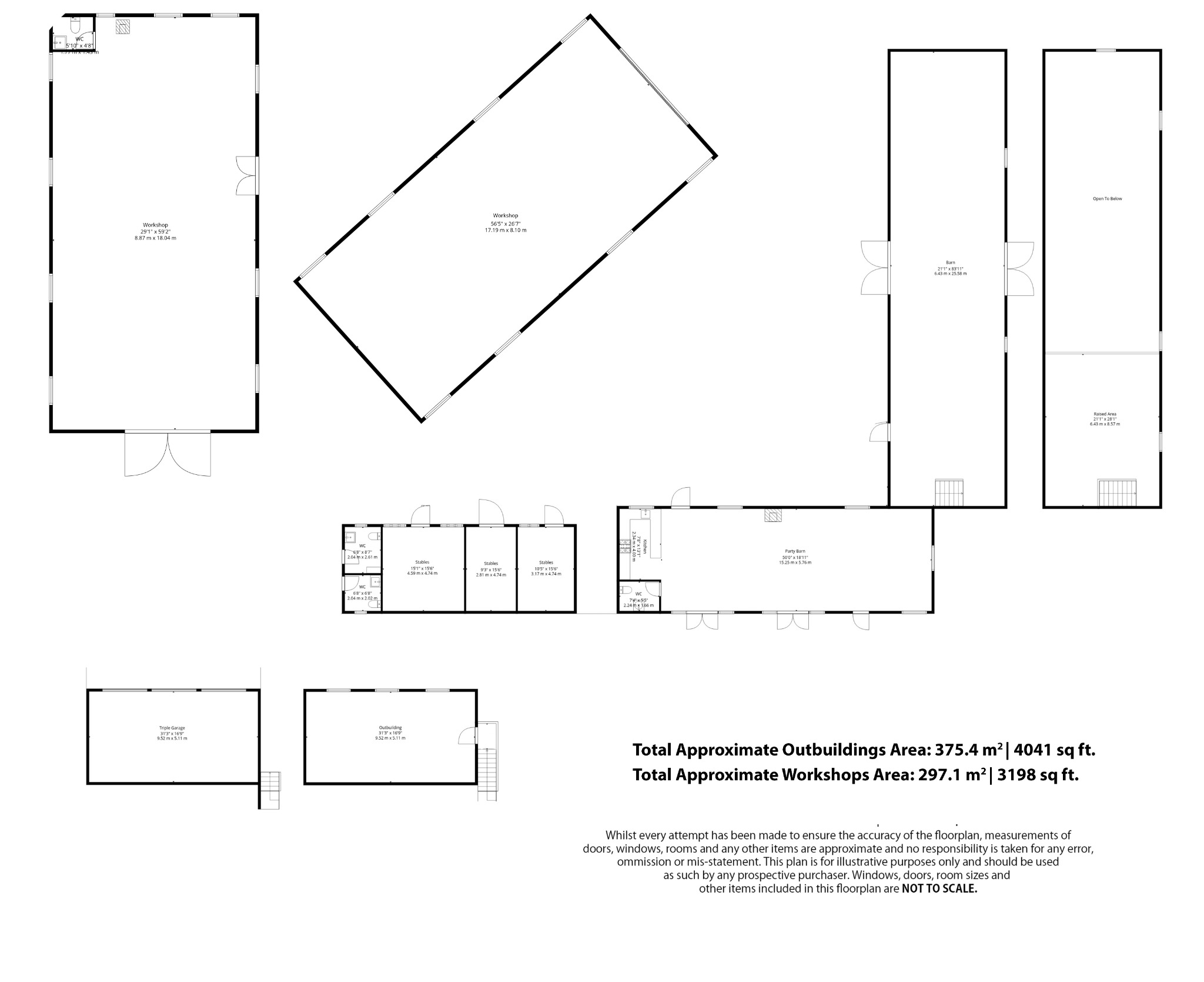
Workshop spaces ideal for classic cars, hobbies or hands-on creativity
Triple garage with scope for future independent accommodation
A dedicated party barn made for gatherings, events and long-table moments
Mains gas supply providing comfort and practicality rarely found in homes of this nature
A peaceful rural setting within easy reach of major road networks, and nearby amenities in Barton-upon-Humber
Property Info
Map
Floor Plan
EPC
Description
For more than 30 years Burnham, as it is affectionately known, has been the backdrop to family life in its fullest sense. Celebrations, quiet routines, woodland walks, and a wedding day that began at the top the staircase, unfolding exactly as it was once imagined.
It has been both sanctuary and stage.
And now, it stands as proudly as it has done for decades before, awaiting its next chapter.
Life at Burnham
The current owners each found their own reason to fall in love with Burnham.
For one, it was the staircase. Standing in the entrance hall, he imagined his daughter walking down it on her wedding day. Years later, she did.
For the other, it was the woodland. A walk among the trees, surrounded by birdsong confirmed that this was the place she wanted to call home.
That balance between occasion and everyday life has shaped how the house has been used ever since.
Burnham is not simply a large country home. It is a place where life has unfolded naturally.
Family gatherings that grew into celebrations. Children who played freely in the gardens. Grandchildren now building dens, the landscape providing a perfect backdrop for
their games. Imagine being a child at Burnham and having the opportunity to explore, play, and grow there.
It has always been a home that adapts to the people within it.
A House That Supports Real Living
Despite the space that it offers, daily life at Burnham centres around simple things.
The kitchen has long been the daytime heart of the house. A place to gather, talk, cook and watch the seasons shift across the land beyond.
In winter, evenings move naturally into the drawing room, where the atmosphere becomes quieter and more intimate.
This rhythm of open togetherness and cosy retreat is what gives Burnham its warmth.
The house offers generous space without ever feeling overwhelming. Rooms flow in a way that allows both connection and independence, whether for family life, hosting guests or pursuing individual interests.
Historic details quietly remind you of the home’s heritage. The cellar. The housekeeping bells. The window shutters. The sense of craftsmanship that sits comfortably alongside modern comforts.
Over the years, thoughtful improvements have ensured that Burnham remains a comfortable and efficient place to live, including the benefit of mains gas and woodburning stoves — an increasingly valuable feature in homes of this nature.
Space for Passions
Burnham has always been a home that supports the lives lived within it.
A keen vintage car enthusiast, the current owner has spent years restoring vehicles in the well-equipped workshop. It is a space of creativity and focus, tucked away neatly in its woodland setting.
Elsewhere, the gardens and grounds have provided room for exploration, imagination and outdoor living.
The formal gardens offer structure and beauty. The woodland offers calm and privacy. The wider grounds offer possibility.
With almost six acres surrounding the home, Burnham lends itself naturally to those who enjoy space, nature and the freedom to shape their surroundings.
Equestrian interests would feel entirely at home here.
Equally, the land simply invites outdoor living in its many forms.
A Home Made for Gathering
Entertaining has always been part of life at Burnham, and the estate has quietly, and proudly, played host to moments that matter.
The presence of the party barn reflects this history — a space that has welcomed weddings, gatherings and milestone events without ever
detracting from the intimacy of the main house.
Importantly, these elements exist as part of the lifestyle the home supports, rather than defining it.
Burnham is first and foremost a home. But one with the capacity to host life in all its forms.
Flexibility for the Future
Beyond the main residence, the estate offers further opportunity.
The possibility for accommodation above the triple garage presents potential for independent living, whether for extended family, guests, business, or future adaptation.
The additional buildings and land create options that can evolve over time. Whether as they are, or with sensitive reimagining, they offer flexibility that is increasingly rare.
Burnham does not demand reinvention. But it allows it.
The Setting
Although surrounded by countryside, Burnham remains well connected.
Nearby Barton-upon-Humber offers everyday amenities, independent shops and dining, while retaining its own historic character.
For those relocating from further afield, this part of North Lincolnshire often comes as a revelation.
The value offered by estates of this scale and setting is difficult to replicate elsewhere.
Space, privacy and lifestyle without isolation.
Road links provide straightforward access to regional centres, while rail connections, a nearby airport, ferry terminal and transport routes make wider travel entirely manageable.
Life in the country here is not remote. It is balanced.
The Next Chapter
Burnham has been deeply loved.
Now, it offers something increasingly exceptional — not just space, but the freedom to shape how that space is lived in.
For some, it will be a remarkable family home.
For others, a place to gather and host.
For many, simply a chance to live closer to nature without giving up comfort or connection.
It is ready for its next moment.
And for those who recognise what it offers, it may be difficult to imagine leaving.
Property Information
Property Type
House
Property Style
Detached
Parking
Triple Garage
Floor Area
6203
Tenure Type
Freehold
Council Tax Band
G
Sewerage
Private Supply
Water
Mains
Condition
Good
Additional Information
Heating
Gas Central, Wood Burner
Electricity
Mains Supply
Broadband
FTTP



