


Fully refurbished contemporary home of over 2000 sq/ft of accommodation in desirable village.
Hartford, Huntingdon, PE29
Guide Price
£650,000
BEDROOM
4
BATHROOM
2
RECEPTION
2
CALL NOW
07400130574Modern High Specification Detached Home
Three/Four Bedrooms with Principle Master Suite
Modern Flowing Open Plan Living Accommodation
Generous 1/4 Acre Corner Plot with Landscaped Gardens
Driveway & Off Road Parking for 4/5 Cars
Commute to London Via Huntingdon Station
Beautifully Presented Kitchen/Breakfast Room
Underfloor Heating & Security Velfac Windows
Contemporary Bespoke Designed Staircase
An Excellent Home For Entertaining
Property Info
Map
Floor Plan
EPC
Media
Description
Outstanding fully refurbished property of over 2000 sq/ft of accommodation in the desirable village of Hartford, Huntingdon. This immaculate three/four bedroom home offers a rare blend of modern design and generous living space occupying a generous corner plot of 1/4 acre in size.
Thoughtfully extended and converted, the home now boasts a stunning master suite upstairs, creating a private retreat with a sense of luxury. The heart of the home is the large open-plan living area, designed for modern family living and entertaining, with light-filled spaces that flow seamlessly. Outside, the property sits within a beautifully landscaped quarter-acre plot, offering both space and privacy. The gardens have been carefully planned for year-round enjoyment, complemented by an elegant aluminum pergola – perfect for alfresco dining or outdoor entertaining. This property combines contemporary style with practical comfort, making it an ideal home for those seeking both quality and lifestyle in one of Huntingdon’s most sought-after locations.
VENDOR INSIGHT
“We have absolutely loved creating and living in this home. The open-plan layout has given us the perfect space for family life and entertaining, with the kitchen, dining, and living areas all flowing together. The upstairs master suite feels like a retreat, offering privacy and comfort. One of our favourite parts of the house is the garden – it’s been landscaped to be both beautiful and easy to maintain, with plenty of space for gatherings, children to play, or simply relaxing. The aluminium pergola has meant we can dine and entertain outdoors in all seasons, which has been a real joy. Hartford itself has been a wonderful place to live – peaceful yet so well connected, with Great Local Pubs, walks, great community spirit, and Huntingdon town centre close by. This has truly been a home where we’ve enjoyed both comfort and lifestyle.”
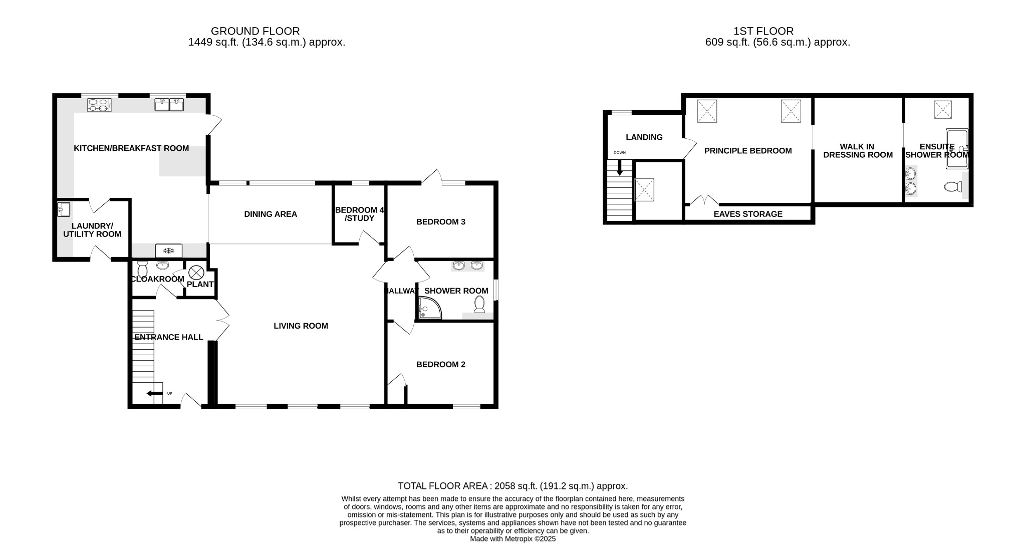
GROUND FLOOR
ENTRANCE HALL
12' 7" x 9' 8"
CLOAKROOM
OPEN PLAN LIVING/DINING AREA
27' 10' max x 21" 6' max
KITCHEN/BREAKFAST ROOM
19' 7 max x 17' 11 max
LAUNDRY/UTILITY ROOM
7' 6" x 7' 3"
BEDROOM TWO
13' 3" x 10' 2"
BEDROOM THREE
13' 2" x 8' 10"
BEDROOM FOUR/STUDY
7' 3" x 6' 4"
DOWNSTAIRS SHOWER ROOM
9' 3" x 7' 4"
FIRST FLOOR LANDING
PRINCIPLE BEDROOM SUITE
BEDROOM
15' 0" x 13' 0
WALK-IN WARDROBE
13' 0" x 10' 9"
ENSUITE SHOWER ROOM
13' 0" x 8' 2"
OUTSIDE
FRONT
The property is situated on a corner plot with a large proportion of the frontage being laid to an extensive block paved driveway with parking for four/five cars. There is a low maintenance area of garden which is laid to gravel surrounded by timber railway sleepers and slate chippings, mature tree, rockery and mature shrubs. Double width timber gates giving access to the rear garden to the north side of the property and a single pedestrian gate to the south side giving access to the side and rear garden. External Lighting and Security Cameras.
REAR
The total plot is 1/4 acre in size making the rear garden a very generous size. Enclosed by timber fencing and mature hedging, this professionally landscaped garden is laid mainly to lawn with an attractive block paved patio seating area spanning the width of the property and making the most of the westerly facing garden. There is a further block paved seating area covered by a low maintenance aluminum pergola with pull down sides and manual tilting roof, ideal for entertaining during the summer months. There is a wealth of well stocked borders with mature walnut tree, a selection of pollarded trees, mature hedging, shrubs and flowers borders, bespoke aluminum raised flower beds, timber shed, storage shed, outside tap, paved side bin storage area, access to the property through the laundry/utility, kitchen, dining area and third bedroom. CC TV security cameras and external lighting.
AGENTS NOTES
The current vendors have created a wonderful home after carefully renovating this property, it is finished to a very high specification, and a huge amount of thought and love have gone into the finished article. Below are just a few of the upgrades that have been made:
• Replacement 'Velfac' double glazed windows and doors throughout (a mixture of pressure treated timber and aluminium externals for low maintenance)
• Quality metal Hormann 16 pin security Front Door.
• Porcelain tiled flooring with under floor heating throughout the kitchen/breakfast room, living room and dining area.
• Zonal heating provided by replacement gas heating system.
• Zonal security system and external CCTV Cameras.
• Luxury selection of 'Neff' built-in kitchen appliances, Grohe hot water tap, Franke waste disposal unit, Italian Elica induction hob with down draft extractor.
• Shower Rooms incorporating 'Aqualisa' showers and taps by Hudson Reed.
• Unique bespoke designed contemporary style staircase to first floor.
• Professionally landscaped gardens and driveway.
NOTE TO PURCHASERS
THESE PARTICULARS ARE ISSUED IN GOOD FAITH BUT DO NOT CONSTITUTE REPRESENTATIONS OF FACT OR FORM PART OF ANY OFFER OR CONTRACT. THE MATTERS REFERRED TO IN THESE PARTICULARS SHOULD BE INDEPENDENTLY VERIFIED BY PROSPECTIVE BUYERS OR TENANTS. NEITHER WELLINGTONWISE NOR ANY OF ITS EMPLOYEES OR AGENTS HAS ANY AUTHORITY TO MAKE OR GIVE ANY REPRESENTATION OR WARRANTY WHATEVER IN RELATION TO THIS PROPERTY.
Property Information
Property Type
House
Property Style
Detached
Parking
Drive
Tenure Type
Freehold
Council Tax Band
E
Sewerage
Mains Supply
Water
Mains
Condition
Good
Additional Information
Heating
Central
Electricity
Mains Supply
Broadband
CABLE


