


SSTC
A Triumph of Modern Luxury, Spatial Harmony, and Eco-Conscious Design
kings chase, grimsby
Offers Over
£675,000
BEDROOM
4
BATHROOM
3
RECEPTION
2
CALL NOW
07910987844Stunning architecturally designed detached home with eco credentials
4 bedrooms + 3 bathrooms
Show-stopping 47 foot open plan living space
Cinema room + cosy snug
Sculptural glass and oak staircase with galleried landing
Triple glazing + mechanical ventilation with heat recovery system
Spa-inspired principal suite
Landscaped gardens featuring summerhouse and ornamental pond
Double garage connected by glazed walkway + ample additional parking
Woodland fringed cul-de-sac setting
Property Info
Map
Floor Plan
EPC
Description
Conceived and built by its developer owners for personal living, the home reveals a profound understanding of how space, light, and silence shape our lives. Every element reflects a steadfast commitment to quality, comfort, and forward-thinking design.
Inside: A Life of Light and Luxury
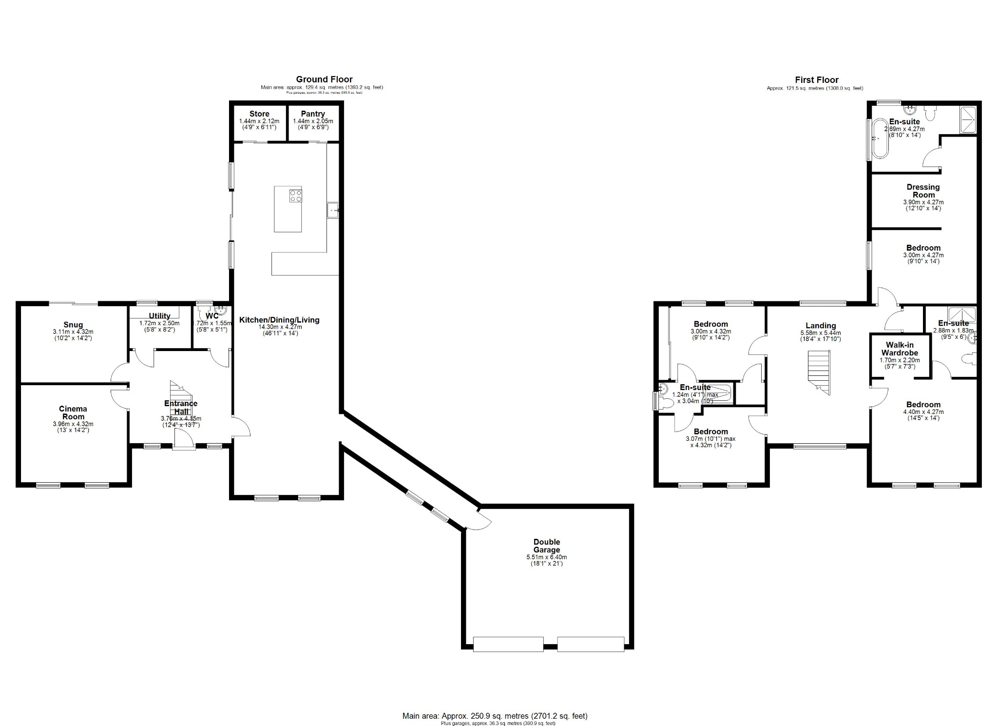
From the moment you cross the threshold through the triple-glazed entrance, a sculptural glass and oak staircase commands attention, a stunning centrepiece that sets the tone for the home’s cinematic flow and graceful spatial arrangement. Behind the elegant oak doors, which feature throughout, you will find a cloakroom/WC, and separate utility room. There is also underfloor heating, for those cooler winter months.
The expansive interior invites you in, with a glass-galleried landing and triple-glazed picture windows offering tranquil views of the surrounding woodland. To the right, the impressive 47-foot open-plan kitchen, dining, and living area unfolds. Anchored by quartz surfaces, premium Miele appliances, and a walk-in pantry with a separate useful concealed storage area, behind stylish barn doors - this is a truly show-stopping space. Large sliding doors connect seamlessly to the garden from the kitchen, while a covered glazed walkway leads to the double garage from the dining area.
Underfloor heating continues throughout this space, and the entire home benefits from a Mechanical Ventilation with Heat Recovery system, by Rega Vent, which ensures energy-efficient, fresh air circulation throughout. Ideal for allergy sufferers and pet owners, it blends comfort with sustainability, reducing heating costs without compromising air quality.
To the left of the main entrance, there's a dedicated cinema room, and a cosy sitting room/snug with large sliding doors framing garden views, perfect for both intimate entertainment and quiet retreat.
Upstairs: Light, Space, and Serenity
The galleried wraparound landing is a luminous sanctuary, bathed in in natural light from the superb triple glazed picture windows, which offer stunning vistas to both front and rear. It provides generous space to sit, read, work, or simply be.
Two well-appointed double bedrooms to the left, share Jack and Jill access to a stylish shower room. To the right, a substantial suite offers a dressing area, and ensuite bathroom, while the principal suite, also located on this side, boasts a large dressing room and spa-like bathroom, featuring a freestanding oval tub beneath a privacy-glazed picture window, alongside a spacious walk-in shower.
Outside: Tranquil Elegance
The welcoming approach to the entrance of the home is beautifully framed by thoughtfully landscaped gardens. The double garage benefits from ample roof storage, and electric doors, while additional parking spaces are available to the front and side, accommodating multiple vehicles.
The expansive, landscaped rear garden is a picture-perfect retreat. Circular lawns, gravel pathways, paved areas, a charming summerhouse, and an ornamental pond create a serene atmosphere for entertaining, relaxation,
quiet reflection, or play, all embraced by stunning woodland surroundings.
Location and Lifestyle
Barnoldby le Beck, steeped in heritage and embraced by nature, offers a rare balance of community warmth, and countryside elegance. Minutes from the Lincolnshire Wolds, an Area of Outstanding Natural Beauty, the village is close to exceptional amenities, including:
- Gastro dining at The Ship Inn, Millers at Waltham Windmill, The Pig & Whistle, and Healing Manor
- Coffee, and lunch with scenic views at the Landmark Café
- Boutique leisure experiences at Laceby Manor Golf & Spa, and Oaklands Hall Hotel
- Outstanding educational options like St James’ School (from nursery to 6th form), and well-regarded primaries
The nearby villages Waltham and Hatcliffe offer additional lifestyle options, and there are facilities close by for equestrian enthusiasts. Key transport links are within easy reach: Grimsby station (4.8 miles), Humberside Airport, and the forthcoming Doncaster Airport (2028).
For those who cherish silence as much as space, and craftsmanship as much as comfort, 6 Kings Chase is more than a house - it’s a statement of intentional living! It is perfectly suited for families, professionals, equestrian enthusiasts, and those seeking rural luxury with urban connectivity.
Property Information
Property Type
House
Property Style
Detached
Parking
Garage
Floor Area
2,701.2 Sq Ft
Tenure Type
Freehold
Age Of Property
Modern Minimalist
Year Built
2021
Council Tax Band
F
Sewerage
Mains Supply
Water
Mains
Condition
Good
Additional Information
Heating
Air Source Heat Pump, Underfloor Heating
Electricity
Mains Supply


