


Under Offer
TWO BEDROOMED 7TH FLOOR APARTMENT OFFERED WITH IMMEDIATE VACANT POSSESSION
Shipwright House, 14 Boulcott Street, London, E1 0HR
Offers In Excess Of
£425,000
BEDROOM
2
BATHROOM
1
RECEPTION
1
CALL NOW
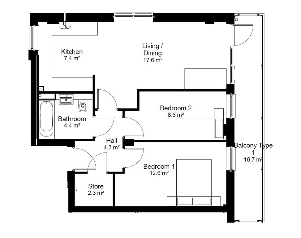
07968950344Two double bedroomed apartment located on the 7th floor
Private hallway leading to the open plan kitchen/dining/reception room
Private balcony that runs right along the whole rear of the apartment
Fully fitted custom-designed contemporary kitchen offering white gloss units
Residents will also have the benefit of a private communal residents-only roof garden which is located on the 6th floor
Quiet cul-de-sac location
Ideal for transportation links
Boulcott Street is a quiet cul-de-sac running off Commercial Road
Quality fixtures and fittings throughout
Viewing highly recommended
Property Info
Map
Floor Plan
EPC
Description
This superb and spacious double aspect two double bedroomed apartment, which is extremely well located, next to excellent transport links and local amenities.
The accommodation comprises communal entrance with security entryphone, with a lift and stairs to the 7th Floor. You then have a private hallway leading to the open plan kitchen/dining/reception room with the fully fitted custom-designed contemporary kitchen offering white gloss units, with quartz worktops, and integrated appliances. This open-plan living room also provides access to a private balcony that runs right along the whole rear of the apartment. There are two generously proportioned double bedrooms and a stylish fully tiled contemporary bathroom with a fitted cabinet and heated towel rail, as well as a large cupboard offering plenty of storage space. Quality flooring is fitted throughout, a mix of wood laminate, porcelain tiles, and carpet. The principal rooms all face south onto the private balcony. Residents will also have the benefit of a private communal residents-only roof garden which is located on the 6th floor.
Boulcott Street is a quiet cul-de-sac running off Commercial Road, located close to Limehouse station and within walking distance of the City. It is also just a short walk from Wapping, Tobacco Dock, and the Limehouse Basin.
Local transport includes Limehouse station (London Over ground and DLR) and
numerous bus routes.
Lease Term 125 years - years remaining 118. To be confirmed by the vendors solicitors.
Annual Ground rent - £500 To be confirmed by the vendors solicitors.
Annual Service - £1763. To be confirmed by the vendors solicitors.
Council Tax Band: D
Property Information
Property Type
Flats / Apartments
Property Style
Apartment
Parking
None
Tenure Type
Leasehold
Council Tax Band
D


